Back to Results

Lot 70, 56 Mead Street, Birkenhead

Recently Added

Exclusive Offer with Shared Equity

Shared Equity Mandatory

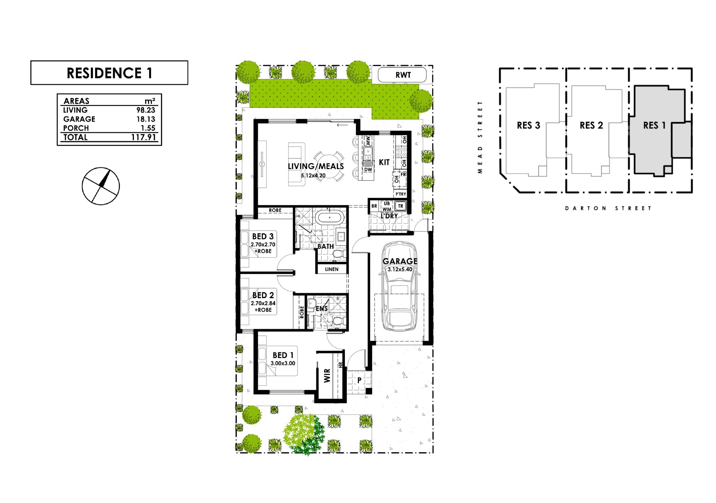
Bedrooms
3
Bathrooms
2
Carports
1

Land Size

198m2

Floor Area

117m2

Type of Sale

House and land package
Share on socials

Contact Sales Agent

Monica Furniss
Harcourts Sheppard RE
[email protected]
0428880314

Sale Price $675,000 with Shared Equity*

*This property is available with HomeStart’s Shared Equity Option or the Australian Government's Help to Buy Scheme for buyers who meet HomeSeeker SA eligibility requirements.

Contemporary Living in Birkenhead!

Close to cosmopolitan Semaphore Road, historic Port Adelaide and the Port Adelaide Recreational Loop – perfect for walking, cycling and spotting dolphins at play. Just a short distance from the pristine beaches of the Lefevre Peninsula, this location is truly a hidden gem.

This soon to be constructed home features light-filled open-plan living at the rear, three bedrooms including a main with walk-in robe and ensuite. A well-appointed family bathroom offers a vanity, shower, toilet and bath, while the laundry includes convenient external access. 

Additional highlights include a single lock-up garage, modern façade, easy-care yard and a neutral, contemporary palette throughout.

Property Features:

- Light-filled open-plan living at the rear
- Three bedrooms
- Main bedroom with walk-in robe and ensuite
- Family bathroom with vanity, shower, toilet and bath
- Laundry with external access
- Single lock-up garage
- Modern façade
- Westinghouse appliances
- Easy-maintenance yard
- Neutral, contemporary colour palette

This is an exceptional Home in a coastal location, where you’re not just buying a home – you’re buying a lifestyle. Close to shops, schools and public transport, this opportunity is not to be missed!

Enquire today!
 

HomeStart Finance

Everyone deserves the chance to own their home and for 35 years HomeStart have been helping South Australians achieve this dream. They understand that everyone’s circumstances are different which is why they have a range of innovative, low deposit loans and additional options that cater to the diverse needs of our community. Eligibility criteria, terms and conditions apply. Fees and charges are payable. 

Help to Buy

The Australian Government’s Help to Buy Scheme is a new initiative designed to support more Australians to buy a home. If you’ve saved what you can but are still a little short of being able to buy a home that meets your needs, Help to Buy may be able to bridge the gap. Whether you're a first-time buyer or someone returning to home ownership, Help to Buy offers support to secure a place to call home. Eligible home buyers can apply through one of the participating lenders listed on the Help to Buy website. 

HomeSeeker SA

This property is available through the state government’s HomeSeeker SA program, which provides eligible buyers the opportunity to purchase fixed price homes without competing with property investors. Check if you’re eligible for HomeSeeker SA at homeseeker.sa.gov.au/eligibility. Please note that the properties listed on HomeSeeker SA may be offered for sale by third-party vendors. The inclusion of a property on this website does not constitute any recommendation, endorsement or guarantee by the Government of South Australia regarding the property or the terms of any sale. The Government of South Australia is not responsible for the performance of any agreements with third-party vendors and is not a party to any disputes arising from such agreements. It is strongly recommended that you seek independent legal advice before entering into any transaction in relation to a property listed on this website.

Location

-34.837440967095, 138.49341225

Register your interest with the Sales Agent

Property: Lot 70, 56 Mead Street, Birkenhead

By submitting your registration of interest you agree that your details will be shared with the sales agent and they will contact you about this property.