Lot 104, Trainer Street, St Clair



Exclusive Offer with Shared Equity
Shared Equity Mandatory
Land Size
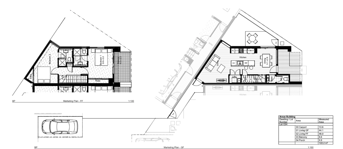
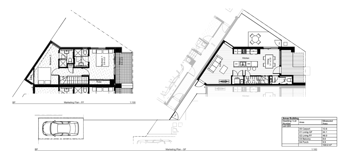
82m2Floor Area
122m2Type of Sale
Contact Sales Agent
Sale Price $675,000 with up to 25% Shared Equity Option*
*This property is only available with HomeStart’s Shared Equity Option.
St Clair - New home living made simple
Your new future awaits with this stunning architecturally designed, Community Titled Townhome within the well-designed Masterplanned community of St Clair.
The Willow is a thoughtfully designed two-bedroom, two-bathroom home that blends indoor comfort with outdoor lifestyle. Downstairs, a central kitchen connects the living and dining areas, flowing out to a private entertaining courtyard. Upstairs, both bedrooms feature built-in robes and ensuites, with the master enjoying exclusive access to a private balcony. This beautiful home offers complete turnkey confidence with premium finishes to be built by award winning builder, Rivergum Homes.
Low maintenance living is at its finest, surrounded by parklands, wetlands and a distinctive pocket reserve.
- Only 7km from the Adelaide CBD and 4km from the beach
- Green space, parks and reserves
- Ducted reverse cycle air conditioning
- Haier stainless steel appliances
- Stone benchtop to kitchen
- LED downlights to living areas, entry, bedrooms and wet areas
- Laminate timber style floating floor and carpets to bedrooms and stairs
- Roller blinds to windows and sliding doors
- 2.7m ceilings
- Floor to ceiling tiles throughout bathroom and ensuite
- Upgrades available
- Ideally positioned within walking distance to medical, dental, pharmacy, shops, cafe’s, eateries and much more
- Choice of light or dark colour scheme
- Anticipated building completion to be late 2026 - early 2027
HomeStart Finance
Everyone deserves the chance to own their home and for 35 years HomeStart have been helping South Australians achieve this dream. They understand that everyone’s circumstances are different which is why they have a range of innovative, low deposit loans and additional options that cater to the diverse needs of our community. Eligibility criteria, terms and conditions apply. Fees and charges are payable.
HomeSeeker SA
This property is available through the state government’s HomeSeeker SA program, which provides eligible buyers the opportunity to purchase fixed price homes without competing with property investors. Check if you’re eligible for HomeSeeker SA at homeseeker.sa.gov.au/eligibility. Please note that the properties listed on HomeSeeker SA may be offered for sale by third-party vendors. The inclusion of a property on this website does not constitute any recommendation, endorsement or guarantee by the Government of South Australia regarding the property or the terms of any sale. The Government of South Australia is not responsible for the performance of any agreements with third-party vendors and is not a party to any disputes arising from such agreements. It is strongly recommended that you seek independent legal advice before entering into any transaction in relation to a property listed on this website.
Location
-34.870168311066, 138.5321269
Register your interest with the Sales Agent
Property: Lot 104, Trainer Street, St Clair
By submitting your registration of interest you agree that your details will be shared with the sales agent and they will contact you about this property.