Back to Results

Lot 16, 24 Murray Street, Albert Park

Exclusive Offer with Shared Equity

Shared Equity Mandatory

Bedrooms
2
Bathrooms
2
Carports
1

Land Size

72m2

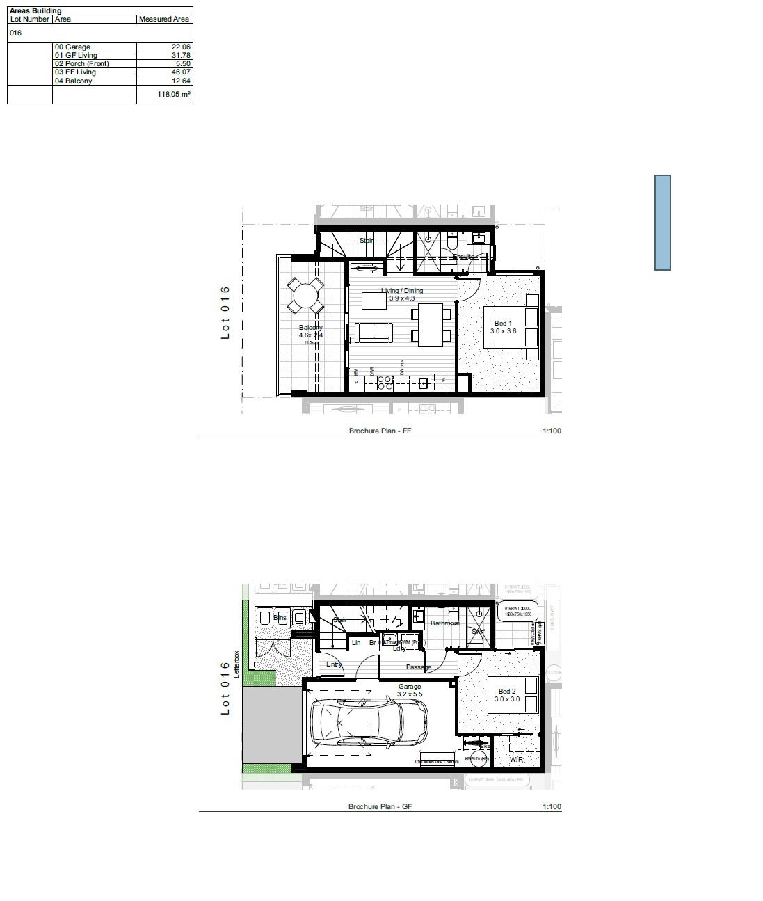
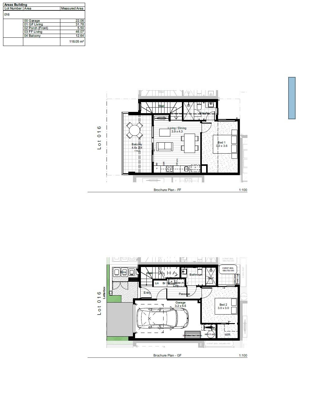
Floor Area

118m2

Type of Sale

House and land package
Share on socials

Contact Sales Agent

Heath Lapthorne
Taplin Glenelg Pty Ltd
[email protected]
0423 764 163

Sale Price $675,000 with Shared Equity*

*This property is available with HomeStart’s Shared Equity Option or the Australian Government's Help to Buy Scheme for buyers who meet HomeSeeker SA eligibility requirements.

Contemporary Albert Park homes await...

Centrally and perfectly positioned in Albert Park. You'll love the impressive kerb appeal of these amazing 2-bedroom Torrens titled town homes, offering a striking façade with privacy and style at the forefront. Architecturally designed with low-maintenance, flexible living in mind.

Albert Park is a vibrant and inviting suburb located approximately 10 kilometres northwest of Adelaide’s central business district. All amenities are nearby, such as Albert Park Railway Station, Coles, Foodland, Hotels, Restaurants, and Historic Port Adelaide.

Enjoy open plan living, kitchen and dining areas situated upstairs which effortlessly flow through to the spacious balcony. Perfect for entertaining with family and friends.

Upstairs also features the main bedroom, with ensuite. Bedroom two is located on the ground floor with easy access to the second bathroom. These homes are cleverly designed to ensure both ground floor and upper levels enjoy practicality and functionality.

Other features include:

  • Landscaping, fencing, concrete paths & driveways
  • Single car garage with remote controlled door & secure internal access
  • Full turnkey standard build
  • Choice of 2 internal colour options
  • Upgrades available

All you need to do is move in.
 
Quality build by award winning Rivergum Homes
 

HomeStart Finance

Everyone deserves the chance to own their home and for 35 years HomeStart have been helping South Australians achieve this dream. They understand that everyone’s circumstances are different which is why they have a range of innovative, low deposit loans and additional options that cater to the diverse needs of our community. Eligibility criteria, terms and conditions apply. Fees and charges are payable. 

Help to Buy

The Australian Government’s Help to Buy Scheme is a new initiative designed to support more Australians to buy a home. If you’ve saved what you can but are still a little short of being able to buy a home that meets your needs, Help to Buy may be able to bridge the gap. Whether you're a first-time buyer or someone returning to home ownership, Help to Buy offers support to secure a place to call home. Eligible home buyers can apply through one of the participating lenders listed on the Help to Buy website. 

HomeSeeker SA

This property is available through the state government’s HomeSeeker SA program, which provides eligible buyers the opportunity to purchase fixed price homes without competing with property investors. Check if you’re eligible for HomeSeeker SA at homeseeker.sa.gov.au/eligibility. Please note that the properties listed on HomeSeeker SA may be offered for sale by third-party vendors. The inclusion of a property on this website does not constitute any recommendation, endorsement or guarantee by the Government of South Australia regarding the property or the terms of any sale. The Government of South Australia is not responsible for the performance of any agreements with third-party vendors and is not a party to any disputes arising from such agreements. It is strongly recommended that you seek independent legal advice before entering into any transaction in relation to a property listed on this website.

Location

-34.876761582942, 138.5237246

Register your interest with the Sales Agent

Property: Lot 16, 24 Murray Street, Albert Park

By submitting your registration of interest you agree that your details will be shared with the sales agent and they will contact you about this property.